Budai iroda és audió stúdió

2045 Nyomtatás Ajánlás Facebook

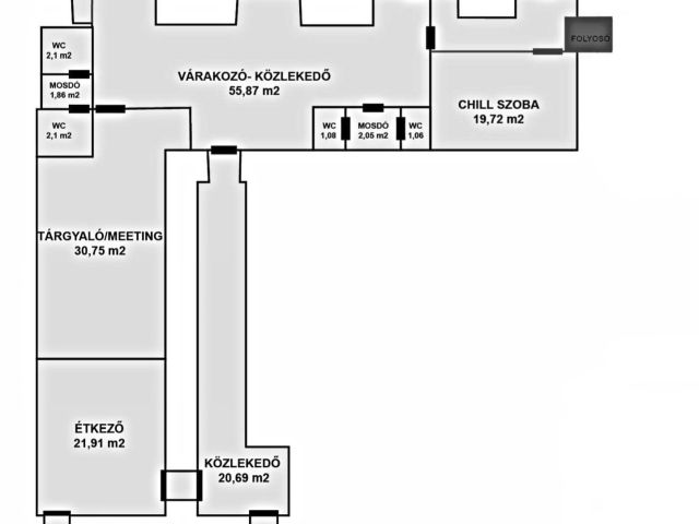
Eladó Budán, a XI. kerületben, 287 m2 alapterületű, utcafronton és belső udvari részen nagy ablakokkal, tágas terekkel és 2,30 m feletti belmagassággal rendelkező földszinti és pince szinti ingatlan. -az utca terepszint változásának köszönhetően, az ingatlan belső udvari része földszinten helyezkedik el.
Az ingatlant tulajdonosai 2016-ban felújíttatták. Ekkor új villamoshálózat kerül kialakításra, felújításra került a vízhálózat és új klíma berendezések lettek beépítve. A jelenlegi helyiségek válaszfalai gipszkarton szerkezetűek, így igény esetén könnyen átalakíthatóak a belső terek. Az ingatlan fűtését padlófűtéssel és radiátorokkal oldották meg, melyet Ariston gázkazán működtet, a helyiségekben riasztórendszer vigyázz az értékekre.
Az épület a Gárdonyi tér közelében helyezkedik el, tömegközlekedéssel is könnyen megközelíthető. A közelben található még a Móricz Zsigmond körtér, Gellért tér, a turisták kedvelt célpontja a környék, ahol a műemléki látványosságok mellett több egyetem és irodaház is található. Itt remek helye lenne egy hostel-nek, előadó teremnek vagy orvosi rendelőnek is.

Az ingatlannal kapcsolatos kérdéseivel várom hívását, a hét bármely napján.

Ügyfeleink számára irodánk teljes jogi hátteret, adás-vétellel kapcsolatos térítésmentes jogi tanácsadást biztosít.
Bank semleges hitelügyintézéssel, díjmentes hitelszűréssel és tanácsadással is hozzájárulunk, hogy megtalálja az ön számára legkedvezőbb megoldást.

Sárai-Kovács Ágnes
PRÉMIUM

Sárai-Kovács Ágnes

5 éve a Városi Ingatlaniroda tagja
Ingatlanértékesítő
Hódmezővásárhely
+36 (30) 742 5020
Észrevétel a hirdetéssel kapcsolatban
Egy ingatlanos naplója