Felújítandó családi ház Sand településen

4320 Nyomtatás Ajánlás Facebook

Zala vármegyében, Nagykanizsától 12, Zalakarostól 16 km távolságra, Sand településen vált eladóvá ez kisebb családi ház. A település rendkívül csendes, biztonságos, barátságos. Az ingatlanhoz egy közel 2000 nm nagyságú sík terület tartozik. A terület kimondottan széles, így a megfelelő privát tér biztosított.

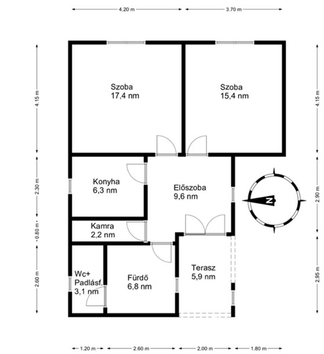
Az épületen jelentős felújítási munkálatok nem történtek. Az ingatlan teljes körű felújítást igényel,mely már az új tulajdonos feladata lesz. Közművek közül a víz és a villamoshálózat elérhető az épületben. Vezetékes gáz szolgáltatás a településen nem elérhető. A helyiségek fűtéséről kandallók gondoskodnak. A lakótér helyiségei: 2 teljes értékű, világos szoba, konyha, kamra, fürdőszoba, előtér, wc, terasz. Az ingatlan nem lakott, így a felújítási munkálatok már az adásvételi szerződés, valamint a vételár kifizetését követően megkezdődhetnek!

Személyes megtekintéshez minden esetben telefonos időpontegyeztetés szükséges! Kérés esetén külső képeket e-mailben van lehetőségem elküldeni!

Stolcz Gábor prémium ingatlanértékesítő ( +36 30 551 8808)

Stolcz Gábor
PRÉMIUM

Stolcz Gábor

9 éve a Városi Ingatlaniroda tagja
Ingatlanértékesítő
Letenye
+36 (30) 551 8808
Észrevétel a hirdetéssel kapcsolatban
Egy ingatlanos naplója